
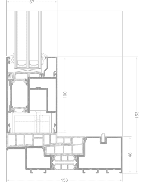
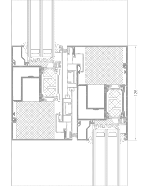
Głębokość ościeżnicy
153 - 239 mm
Głębokość skrzydła
67 mm
Grubość oszklenia
14 - 52 mm
Przepuszczalność powietrza
Klasa 4
Wodoszczelność
Klasa 9A (600Pa)
Odporność na obciążenie wiatrem
Klasa C4 (1600Pa)
Zastosowanie:
-
konstrukcje przesuwne lub podnoszono przesuwne;
-
system dostosowany do najnowszych wymagań w dziedzinie izolacyjności termicznej, estetyki i bezpieczeństwa;
-
dostępne opcje systemu: UG wersja z niskim progiem, UG – rozwiązanie kątowe 90°
-
konstrukcje przesuwne UG przeznaczone są do stosowania w obiektach budownictwa mieszkaniowego, głównie indywidualnego i użyteczności publicznej;
-
konstrukcje o bardzo dużych gabarytach skrzydeł jezdnych - maksymalne wymiary konstrukcji: wysokość skrzydła do 3300 mm i szerokość skrzydła do 3500mm.
-
budowa konstrukcji: ościeżnica - system 3 ,5 i 7 komorowy;
-
możliwe kombinacje dwu, trzy i czteroelementowe na bazie systemu dwutorowego;
-
możliwość zastosowania różnego typu wypełnienia (szyba jedno, dwukomorowa);
-
system umożliwia konstrukcję dużych przeszkleń, co zapewnia doskonałe doświetlenie wnętrz oraz ułatwia ich aranżację, zachowując jednocześnie stabilność, funkcjonalność i lekkość konstrukcji.
-
system kompatybilny z innymi systemami Aliplast;
-
szeroki wybór kolorystyki – paleta RAL, kolory strukturalne, kolory drewnopodobne Aliplast Wood Colour Effect, anoda, bikolor;


